- Woonoppervlakte
- Circa 71 m²
- Inhoud
- Circa 234 m³
- Bouwjaar
- Gebouwd in 2007
- Aantal kamers
- 2 kamers (1 slaapkamers)
Wonen midden in het bruisende centrum van Wijchen, met werkelijk alles op loopafstand. Vanuit dit sfeervolle tweekamerappartement loop je zó naar de winkels, het terras of het station. Ideaal voor wie houdt van levendigheid, comfort en gemak – en graag centraal wil wonen met alle voorzieningen binnen handbereik.
Het appartement maakt deel uit van een verzorgd complex met lift, eigen berging en een vaste parkeerplaats in de afgesloten parkeergarage. Hier woon je comfortabel, rustig én veilig, midden in het centrum.
Aan de Spoorstraat woon je letterlijk midden in het centrum van Wijchen. Supermarkten, restaurants, speciaalzaken en het NS-station liggen op steenworp afstand. Voor ontspanning wandel je naar het kasteel, het Wijchens Meer of één van de nabijgelegen wandelroutes. En met de A50 en A73 vlakbij zijn ook Nijmegen en Den Bosch uitstekend bereikbaar.
Sterke punten
- Wonen in het hart van Wijchen
- NS-station, winkels en horeca op loopafstand
- Energielabel A (HR-glas, dak- en muurisolatie)
- Lift aanwezig
- Eigen parkeerplaats in afgesloten parkeergarage
- Eigen inpandige berging
- Aparte was-/CV-ruimte
- Balkon aan de slaapkamer
- Actieve en goed functionerende VvE
- VvE-bijdrage totaal € 329,21 per maand
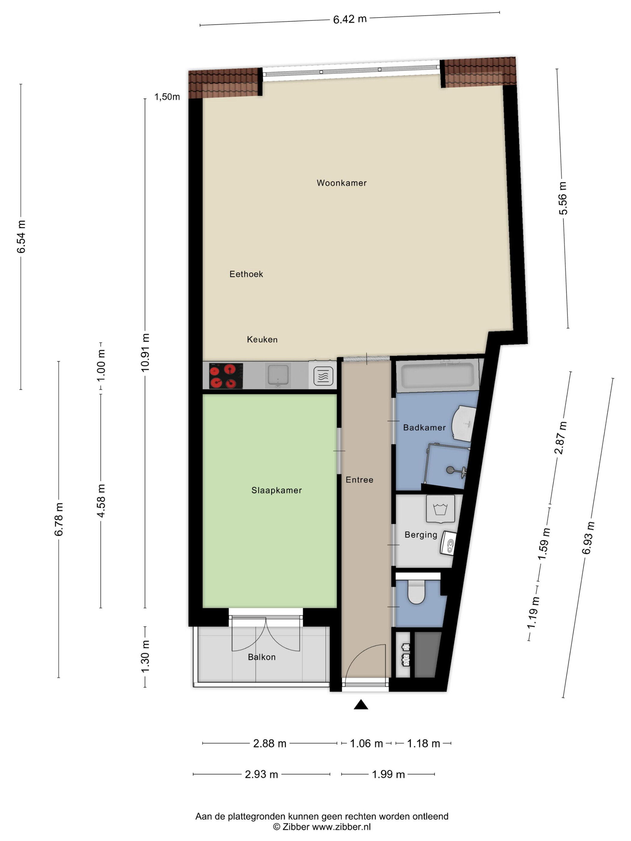
Indeling
Begane grond
Gezamenlijke, afgesloten entree met brievenbussen, videofooninstallatie en lift. Vanuit hier heb je toegang tot de bergingen en de parkeergarage. Het appartement beschikt over een eigen berging en een vaste parkeerplaats in de overdekte, afgesloten parkeergarage.
Tweede verdieping
Entree, hal met meterkast (glasvezelaansluiting) en separaat toilet. Vanuit hier stap je de lichte woonkamer binnen, waar de brede dakkapel zorgt voor een prettige lichtinval en uitzicht op de gezellige winkelstraat beneden. Het is een fijne plek om te ontspannen na een drukke dag of om met een kop koffie te genieten van de levendigheid van het centrum, zonder dat het ooit druk aanvoelt.
De open keuken sluit daar mooi op aan – compact maar compleet, voorzien van een keramische kookplaat, vlakscherm afzuigkap, koelkast, combimagnetron en vaatwasser. Alles binnen handbereik, zodat koken net zo makkelijk als gezellig wordt. Naast de keuken bevindt zich een aparte was-/cv-ruimte (cv Nefit 2007, eigendom).
De slaapkamer is ruim genoeg voor een tweepersoonsbed en een kledingkast, en beschikt over openslaande deuren naar het balkon – een fijn plekje om buiten te zitten.
De badkamer is praktisch en ingericht met een ligbad, douchecabine en wastafelmeubel. Het appartement is afgewerkt met spuitwerk plafonds en wanden en een doorlopende parketvloer.
VvE-bijdrage (totaal € 329,21 per maand):
Wonen: € 276,00 per maand
Parkeren: € 50,04 per maand
Berging: € 3,17 per maand
Overige bijzonderheden:
Gebruikersclausule van toepassing op de koopovereenkomst
Overdracht
- Vraagprijs
- € 335.000 k.k.
- Status
- Verkocht
- Aanvaarding
- In overleg
- Bijdrage VvE
- € 329.21 p/m
Bouw
- Object type
- Portiekflat, appartement
- Soort bouw
- Bestaande bouw
- Bouwjaar
- 2007
- Soort dak
- Samengesteld dak
Oppervlakte en inhoud
- Woonoppervlakte
- 71 m²
- Inhoud
- 234 m³
- Externe bergruimte
- 4 m²
- Gebouwgeb. buitenruimte
- 4 m²
Indeling
- Aantal kamers
- 2 kamers (1 slaapkamers)
- Aantal badkamers
- 1 badkamer
- Badkamervoorzieningen
- Ligbad, douche, wastafelmeubel
- Aantal woonlagen
- 1 woonlaag
- Voorzieningen
- Mechanische ventilatie, tv-kabel, lift, glasvezel kabel
Energie
- Energielabel
- A
- Energielabel registratie
- 11-09-2025
- Isolatie
- Dakisolatie, muurisolatie, hr glas
- Verwarming
- Cv-ketel
- Warm water
- Cv-ketel
- Cv ketel
- Nefit combiketel gas gestookt uit 2007 (eigendom)
Buitenruimte
- Ligging
- In centrum
- Balkon / dakterras
- Balkon
- Tuin
- Geen tuin
Garage
- Soort garage
- Parkeerkelder
Parkeergelegenheid
- Soort parkeergelegenheid
- Openbaar parkeren, parkeergarage
VvE checklist
- Periodieke bijdrage
- Ja, € 329.21 p/m
Indicatie hypotheeklasten
Eigen inleg:
Spaargeld / overwaarde
Rente:
Laagste 10-jaars rente
Laagste 10-jaars rente
2,85% - Centraal Beheer Groen... - NHG
3,08% - Centraal Beheer Groen... - 80%
Laagste 20-jaars rente
3,29% - Centraal Beheer Groen... - NHG
3,52% - Centraal Beheer Groen... - 80%
Laagste 30-jaars rente
3,41% - Centraal Beheer Groen... - NHG
3,74% - Centraal Beheer Groen... - 80%
Hypotheek:
Bruto maandlasten: € 0 p/m
Netto maandlasten: € 0 p/m
Hoe berekenen we dit?
Het rentepercentage is gebaseerd op de laagste 10 jaars vaste rente voor één hypotheekdeel. De vermelde rente (2.85% met NHG) is gecontroleerd op 03-02-2026. Deze berekening is gebaseerd op een annuïteitenhypotheek die volledig wordt afgelost, waarbij de maandlasten gedurende de gehele looptijd gelijk blijven. De werkelijke rente en netto maandlasten kunnen variëren, afhankelijk van uw persoonlijke situatie en de hypotheekverstrekker. Raadpleeg een financieel adviseur voor een nauwkeurige berekening en advies. Aan deze berekening kunnen geen rechten worden ontleend; het dient enkel als indicatie.
Documentatie
Kadastrale kaart
Leefomgeving
Plattegronden PDF
WOZ waarderapport
BAG uittreksel
Brochure
Bezoek onze website
Inloggen move.nl
Bezichtiging
Bod uitbrengen
Waardebepaling
Zoekopdracht
Alles downloaden
Zonnegrenzen bekijken
Op de kaart
Inwoners in Wijchen
Cijfers voor postcodegebied 6602
- Totaal aantal inwoners
- 36260 inwoners
- Mannen
- 49%
- Vrouwen
- 51%
Inwoners in Wijchen
Cijfers voor postcodegebied 6602
- tot 15 jaar
- 12%
- 15 tot 25 jaar
- 13%
- 25 tot 35 jaar
- 19%
- 45 tot 65 jaar
- 34%
- 65 en ouder
- 21.7%
Huishoudens in Wijchen
Cijfers voor postcodegebied 6602
- Eenpersoons zonder kinderen
- 27%
- Meerpersoons zonder kinderen
- 32%
- Huishoudens zonder kinderen
- 59%
Huishoudens in Wijchen
Cijfers voor postcodegebied 6602
- Huishoudens met één kind
- 20%
- Huishoudens met meerdere kinderen
- 21%
- Huishoudens met kinderen
- 41%
Woningen in Wijchen
Cijfers voor postcodegebied 6602
- Woningen voor 1945
- 6%
- Woningen tussen 1945 en 1965
- 23%
- Woningen tussen 1965 en 1975
- 22%
- Woningen tussen 1975 en 1985
- 22%
- Woningen tussen 1985 en 1995
- 7%
Woningen in Wijchen
Cijfers voor postcodegebied 6602
- Woningen tussen 1995 en 2005
- 7%
- Woningen tussen 2005 en 2015
- 5%
- Woningen na 2015
- 6%
- Huurwoningen
- 40%
- Koopwoningen
- 60%
Overige in Wijchen
Cijfers voor postcodegebied 6602
- Gemiddelde WOZ waarde
- € 309.000,-
- Personen onder de 65 met uitkering
- 7%
Overige in Wijchen
Cijfers voor postcodegebied 6602
- Adressen per km²
- 1859
- Stedelijkheid (schaal 1 op 5)
- 80%
Korte feiten over Wijchen
Wijchen is de hoofdplaats van de gemeente Wijchen in de Nederlandse provincie Gelderland. De plaats is met 36.625 inwoners (op 1 januari 2021) de grootste in de gelijknamige gemeente van bijna 41.000 inwoners. Wijchen ligt aan de zuidgrens van Gelderland, tegen Noord-Brabant aan.
Indien u vragen heeft of u wilt een bezichtiging inplannen, dan kunt u gebruik maken van het formulier hiernaast. Er zal daarna op korte termijn contact met u worden opgenomen.
Kasteellaan 23
6602 DB, Wijchen
024 64 90100 binnendienst@driessenmakelaardij.nl www.driessenmakelaardij.nlContact opnemen
Al 40 jaar uw huismakelaar
Ondernemende makelaar met ambitie
U wilt een huis kopen, verkopen of laten taxeren. Het liefst schakelt u een betrouwbare makelaar in bij u in de buurt. Maar hoe vindt u precies de makelaar die het best bij u past? Het aanbod is al zo groot.
Driessen Makelaardij maakt uw keuze een stuk gemakkelijker. Hoe? Allereerst zijn we al veertig jaar een begrip in de regio. Met een kantoor in Wijchen en in Nijmegen kennen wij de lokale huizenmarkt op ons duimpje. En niet onbelangrijk: de huizenmarkt kent ons. ‘Want vaak is de eerste stap van een woningzoeker de stap naar ons kantoor.’ Hierdoor weten wij vraag en aanbod snel bij elkaar te brengen en perfect in te spelen op de wensen van klanten en potentiële klanten. Bovendien zijn we aangesloten bij de NVM, de grootste brancheorganisatie in de makelaardij. Onze mensen zijn dus uitstekend in staat het hele aan- en verkooptraject van begin tot eind professioneel te begeleiden.
Uw ambitie is onze ambitie. Dat wil zeggen: u verwacht van ons dat we tot het uiterste gaan u die kwaliteit te bieden waarom we al zo lang bekend staan. Daar mag u ons aan houden!
Nieuwste reviews
-
Zesakkers 2015
Het contact met de makelaar verliep erg goed. Goed bereikbaar, korte lijntjes en deskundig. Erg tevreden
-
Aalsburg 2524
Fijne en goede communicatie.Goed advies en meedenken met de klant.Zo kan het dus ook 😀Bedankt Ivonne Jansen + binnendienst team
-
Marskramer 51
Prettig contact met de makelaar; zij hield ons tussentijds steeds op de hoogte na een bezichtiging; heel fijn!